首页
新房
二手房
租房
e房公寓
写字楼
小区
楼讯
装修
APP下载
关注公众号
微信小程序
二手房
帮我找房
楼盘行情
无锡房产网
>
无锡二手房
>
滨湖区二手房
>
河埒口二手房
>
华晶新村
华晶新村 2室1厅
真实在售
无忧交易
e房网官方发布
55.00
万
≈10377
元/平米
贷款计算器
首付及含税情况请咨询经纪人
2室1厅1卫
高层/5层
53.00㎡
1990年
南
精装
小区:
华晶新村
区域:
滨湖区
-
河埒口
地址:
滨湖区青山东路华晶小学旁
-
在线咨询
华晶新村基本信息
房屋户型:
2室1厅1卫
所在楼层:
中层/5层
建筑面积:
53.00㎡
套内面积:
53.00㎡
房屋朝向:
南
装修情况:
精装
配备电梯:
无
建筑年代:
1990年
华晶新村本房源特色
房源特色:
周边配套:
商场:大润发超市
小区介绍:
暂无信息
交通出行:
公交:95路、203路(华晶新村) 地铁:地铁2号线河埒口站下车
注:1.房源介绍中的周边配套、在建设施、规划设施、地铁信息、绿化率、得房率、容积率等信息为通过物业介绍、房产证、实勘、政府 官网等渠道获取,因时间、政策会发生变化,与实际情况可能略有偏差,房源介绍仅供参考。 2.房源介绍中与距离相关的数据均来源于百 度地图。 3.土地使用起止年限详见业主土地证明材料或查询相关政府部门的登记文件。
华晶新村房源照片
卧室
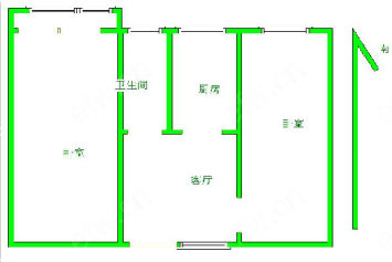
户型图
客厅
厨房
卫生间
华晶新村小区信息
物业类型:
住宅
物 业 费:
暂无数据
总 户 数:
暂无数据
建造年代:
暂无数据
停 车 位:
暂无数据
容 积 率:
暂无数据
绿 化 率:
30.00%
开 发 商:
无锡市市政建设综合开发公司
物业公司:
街道管理处
所属商圈:
滨湖区 河埒口
华晶新村房价走势
2024年11月-2025年10月
华晶新村小区照片
更多联系人
换一批
关注房源
取消关注
无锡华晶新村房贷计算器
计算条件
选择户型
2室1厅1卫
估算总价
按揭成数
7成
1成
2成
3成
4成
5成
6成
7成
8成
9成
贷款类别
商业贷款
商业贷款
公积金贷款
组合贷款
贷款金额
公积金
万元
不能为空!
商业性
万元
不能为空!
贷款时间
20年(240个月)
1年(12期)
2年(24期)
3年(36期)
4年(48期)
5年(60期)
6年(72期)
7年(84期)
8年(96期)
9年(108期)
10年(120期)
11年(132期)
12年(144期)
13年(156期)
14年(168期)
15年(180期)
16年(192期)
17年(204期)
18年(216期)
19年(228期)
20年(240期)
21年(252期)
22年(264期)
23年(276期)
24年(288期)
25年(300期)
26年(312期)
27年(324期)
28年(336期)
29年(348期)
30年(360期)
开始计算
计算结果
月均还款
-
元
-
-
-
备注:以等额本息计算结果,数据仅供参考
>>更多贷款计算
华晶新村周边二手房
更多
精选
荷叶新村 2室1厅精装修
65
万
2室1厅 62.45平方米
精选
红山花园一期(东区) 3室2厅
200
万
3室2厅 111.4平方米
精选
红山花园 精装顶复带阳光房 南北通透 近地铁
308
万
4室2厅 196.69平方米
精选
荷叶新村 2房 全明户型 另送家电
50
万
2室1厅 52.5平方米
免责声明:本站楼盘信息旨在为用户提供更多信息的无偿服务,信息以政府部门登记备案为准,请谨慎核查。
首页
|
关于我们
|
招聘信息
|
e房网手机站
|
免责条款
主办:无锡市易房信息技术服务有限公司 客服电话:4001140005 邮箱:
EFW@EFW.CN
版权所有 Copyright 2003-2019 无锡市易房信息技术服务有限公司 All Rights Reserved 无锡房产 无锡房地产 无锡新房 无锡二手房 无锡租房
经营许可证编号:苏B2-20130258 | ICP备案编号:
苏ICP备05004025号
手机快捷登录
别担心,无账号自动注册不会导致手机号被泄露
|
获取验证码
立即登录
账号密码登录
登录即代表同意《
e房网隐私政策
》及《
e房网用户使用协议
》
用户名登录
忘记密码
立即登录
手机快捷登录
登录即代表同意《
e房网隐私政策
》及《
e房网用户使用协议
》
找回密码
|
获取验证码
修改密码
账号密码登录
手机号码注册
|
获取验证码
登录即代表同意《
e房网隐私政策
》及《
e房网用户使用协议
》
注册
账号密码登录
在线咨询
0
收起
没有聊过的经纪人
在线
程函1
关闭
当前不在线,您可以在线留言
获取更多历史信息
没有更多历史信息
聊天的时候,经纪人无法知道您的手机号!
立即下载e房网APP, 随时随地聊~
约车看房
1.报名
2.电话确认
3.短信通知
4.看房
|
获取验证码
立即报名